Usi industriale sectionale cu sistem de culisare HL + FTR (High Lift + Follow The Roof)

Acest sistem de culisare este o combinatie intre sistemele de culisare HighLift si FollowTheRoof. Sistemul este folosit atunci cand tavanul este mai inalt si se doreste ca usa sectionala sa urmareasca forma tavanului.

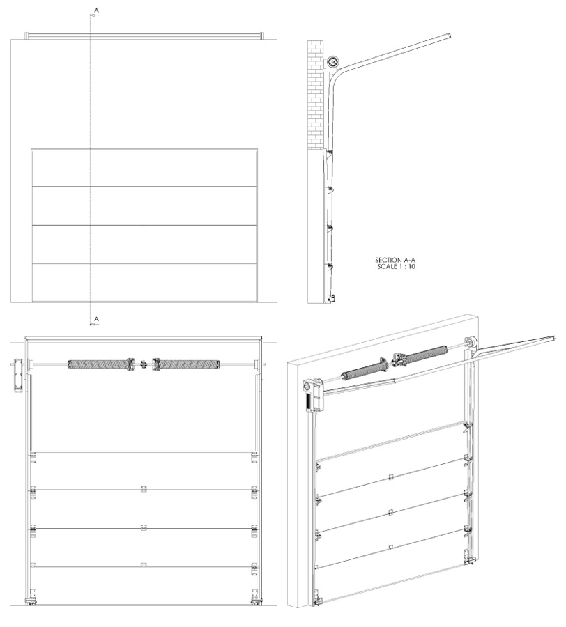
Sistemul usilor industriale sectionale MCA este realizat din:
  • Foaie de usa, realizata din mai multe panouri sandvici suprapuse;
  • Sina de culisare realizata din tabla galvanizata de 3mm grosime. In partea de sus, sistemul de culisare are  o suprainaltare, apoi sina este curbata dupa forma tavanului.
  • Arcul de torsiune este montat pe grinda, in partea din fata a usii. In functie de dimensiune, usa industriala sectionala MCA poate avea mai multe arcuri de torsiune;
  • Actionarea poate fi manuala, cu lant si reductor 1/4 sau electric cu motor axial.
Din punctul de vedere al sistemelor de siguranta, usile industriale sectionale MCA sunt prevazute cu:
  • Sistem impotriva prinderii degetelor intre panouri;
  • Sistem de siguranta impotriva ruperii arcurilor;
  • Sistem de siguranta impotriva ruperii sufelor;
  • Bolt, pentru blocarea din interior, numai pentru usile sectionale manuale.
Optional, usile industriale sectionale MCA pot fi accesorizate cu:
  • Actionare electrica cu telecomanda si panou de control;
  • Sistem de siguranta in chederul inferior, de tip "Safety edge". Sistemul presupune instalarea unui senzor de tip balon in muchia inferioara a usii. La detectarea unui obstacol usa industriala sectionala isi va opri imediat coborarea si se va ridica 100 mm;
  • Sistem de fotocelule. Acest sistem opreste imediat coborarea usii in cazul in care este detectata intreruperea circuitului realizat de sistemul de fotocelule;
  • Fereste sau panouri vitrate. Pentru a eficientiza costurile cu iluminarea se poate opta pentru inlocuirea completa a unor panouri tip sandivici, cu spuma poliuretanica la mijloc, cu panouri vitrate;
  • Usa pietonala cu prag subtire. Pentru un acces facil si rapid, usile industriale sectionate pot fi dotate cu usi pietonale. Aceste usi au dimensiune standard, de 800x2000 mm, si sunt dotate cu arc, maner si yala pentru incuiere;
  • Grile de ventilare pentru a asigura aerisirea permanenta a spatiului.

Usa industriala sectionala MCA


Calculati acum pretul usii industriale!

Configurator online de produse! Devizul se calculeaza instant!

Galerie foto usi industriale MCA